Vendesi appartamento quadrilocale a Sale Marasino | Rif. 28/25
SALE MARASINO, Appartamento in vendita di 103 Mq, Abitabile, Riscaldamento…
130.000€
ISEO BS
Nuova costruzione
Trattativa riservata
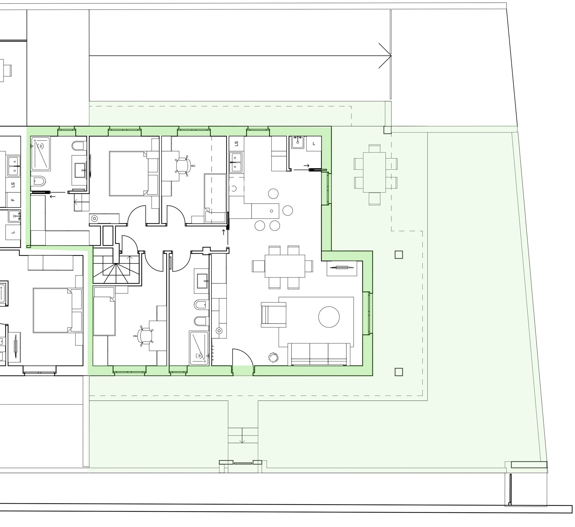
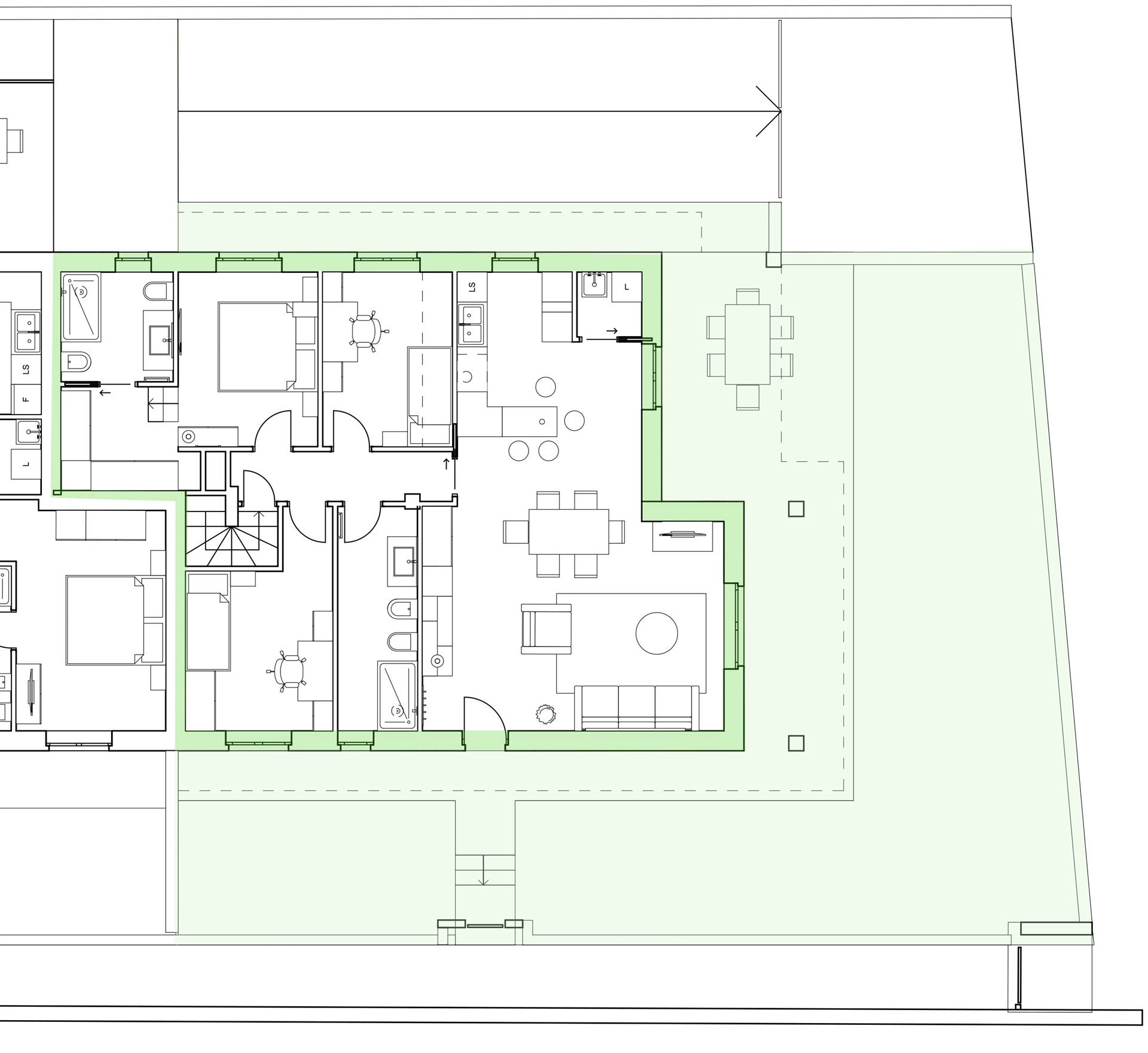
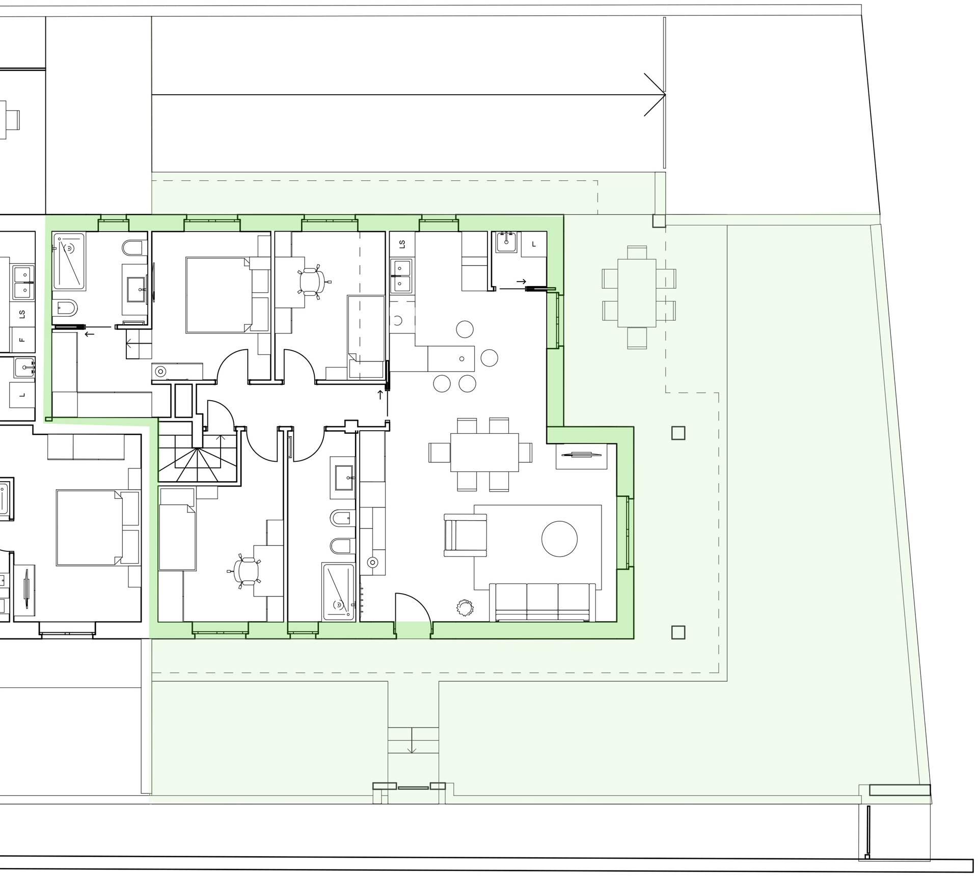
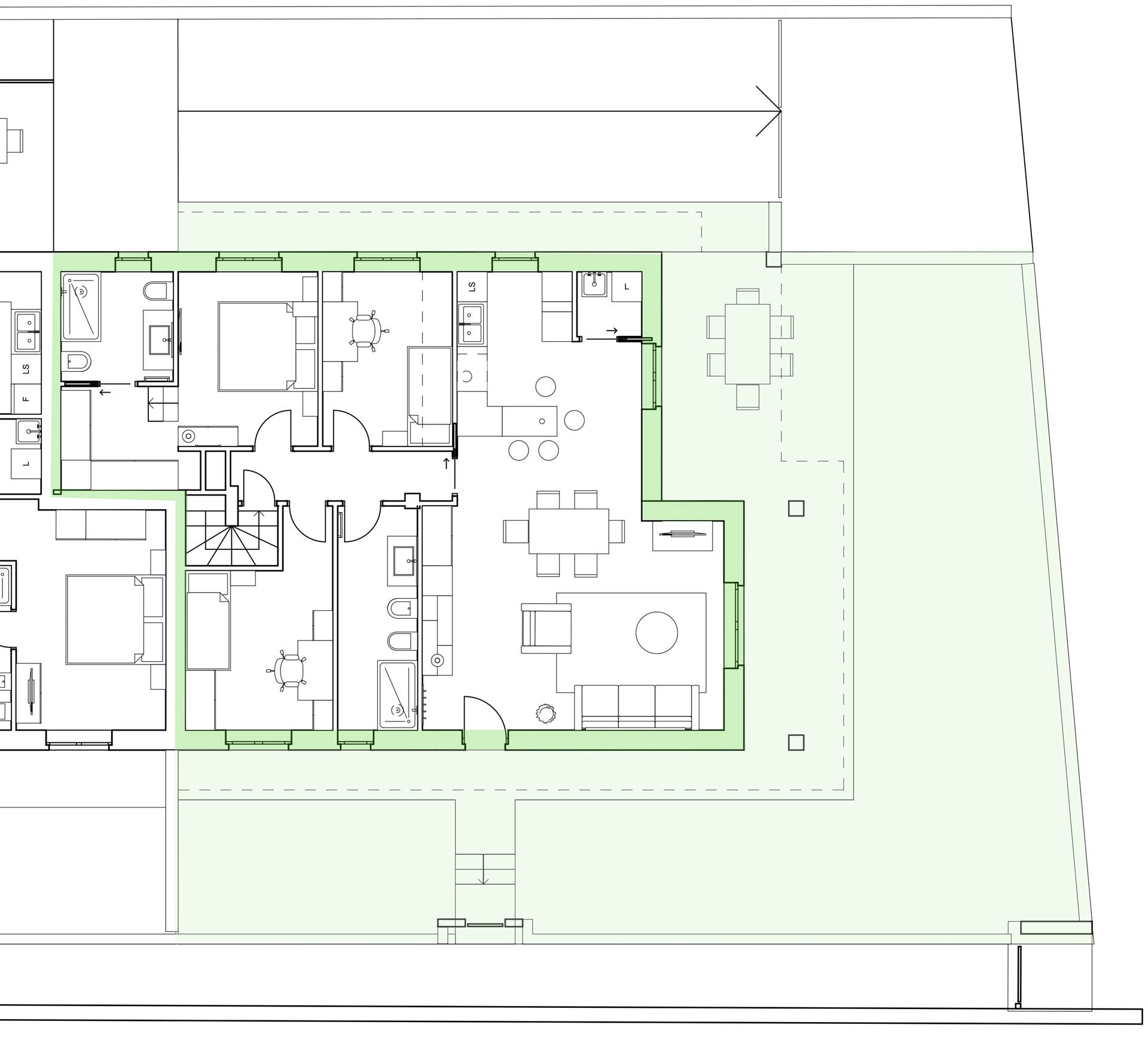
Appartamento quadrilocale di nuova realizzazione, in ampliamento a complesso immobiliare riqualificato a nuovo, disposto al piano terra.
Situato a Iseo in zona centrale e ben servita da tutti i servizi di pubblica utilità.
L’abitazione è così composta:
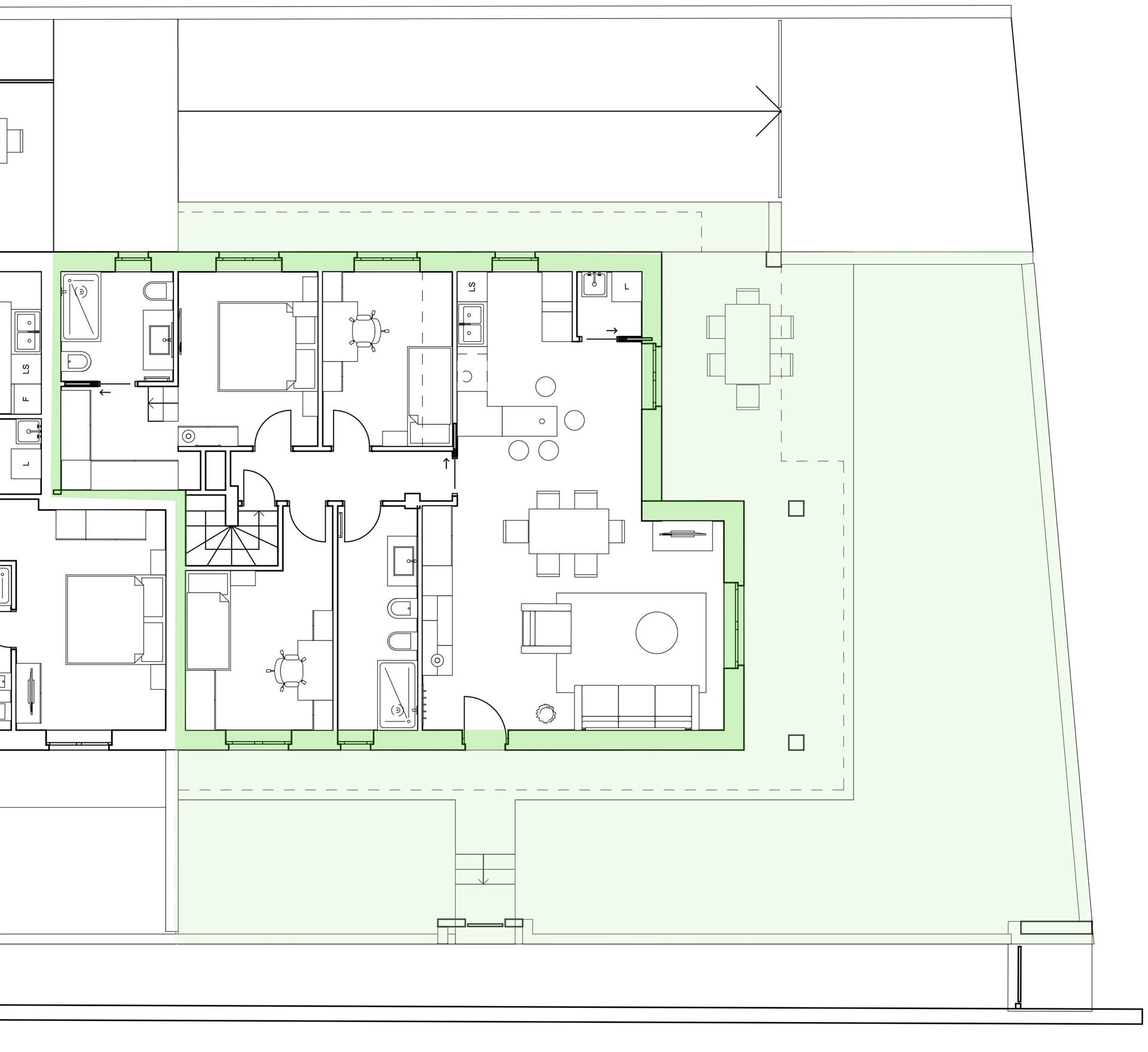
Ingresso indipendente da vialetto comune; zona soggiorno/living con uscita sul portico; cucina a vista, affacciata sia sul balcone che sul portico. La superficie della zona giorno è di mq. 42,16. I due portici, sono rispettivamente di mq. 11,91 e di mq. 5,82; ripostiglio/lavanderia di mq. 1,69 e giardino esclusivo, di mq. 124,34.
Accesso alla zona notte da ampio corridoio di mq. 4,36, bagno di servizio al piano, completo di sanitari sospesi e doccia, per mq. 7,30. Completano la zona notte le tre camere, due di mq. 10,74 e mq. 9,10; la camera padronale è di mq. 14,69, provvista di zona antibagno/armadio e bagno privato con doccia per mq. 4,95. Balcone di mq. 11,90 con doppio accesso, da due delle tre camere. La terza camera è provvista di uscita sul giardino.
Autorimessa di mq. 22,84 e due cantine esclusive, rispettivamente di mq. 19,08 e 10,35 al piano interrato, con accesso diretto da scala interna all’abitazione e dall’esterno, mediante porta sezionale a soffio, elettrificata con comando a distanza.
L’appartamento sarà dotato di impianto a sistema ibrido (gas – energia elettrica) con riscaldamento a pavimento e raffrescamento con predisposizione per gli split.
L’energia elettrica sarà integrata mediante pannelli fotovoltaici con batteria di accumulo.
Serramenti esterni in alluminio con vetrocamera doppio 3+3 basso emissivo; portoncino d’ingresso blindato.
Possibilità di scelta dei pavimenti, tra Parquet e Gres porcellanato.
Classe energetica A3/A4.
CONSEGNA APRILE 2027
Dimensioni(mq): 117
Condizioni: Nuova costruzione
Livelli immobile: 1
Vani: 4
Camere: 3
Bagni: 2
Riscaldamento: A Pavimento
Cucina: Abitabile
Garage: 1 (mq. 23)
Classe Energetica: In corso di certificazione
EPI: (kwh/m2 anno)
Per maggiori info contattaci
Studio Immobiliare Ferrari s.r.l.
Telefono : 0305056393
Cellulare Oscar Ferrari: 3398711649
Email : info@immobiliare-ferrari.it
Agenzia immobiliare a Iseo, vendita immobili lago Iseo, Franciacorta ed in tutta la provincia di Brescia.
realizzato da
SALE MARASINO, Appartamento in vendita di 103 Mq, Abitabile, Riscaldamento…
130.000€
ISEO, Appartamento in vendita di 101 Mq, Nuova costruzione, Riscaldamento…
Trattativa riservata